Overview
Closing Costs Calculator- Status: Closed
- Parking No info
- Size: 3,588 ft2/333.34 m2
- Price Per: $213.21 ft2/$2,294.98 m2
- Type: Multifamily
- Built: 1991
- HOA: No info
- MLS Number: RX-11066559
- View No info
- On Site: 325 days
- Updated: 194 Days Ago
- Page Views: 10
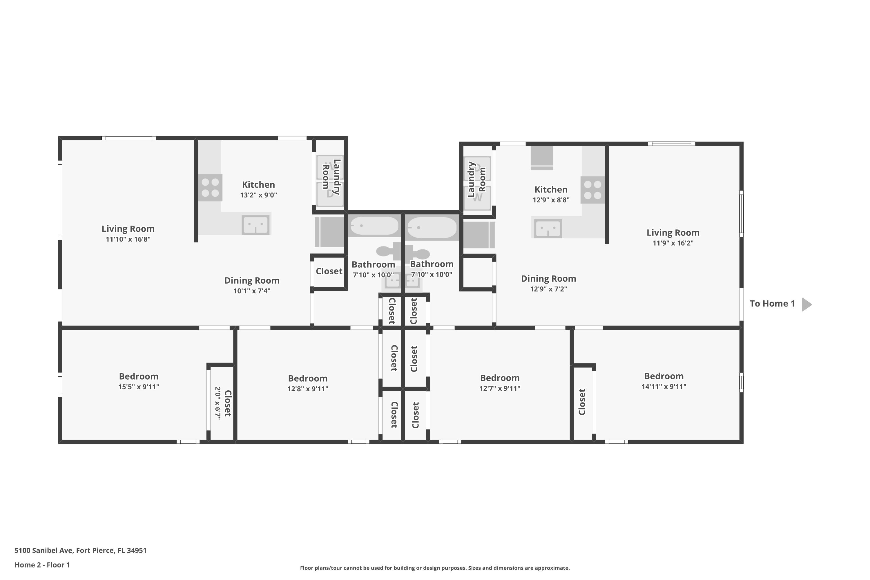
Exceptional investment in Fort Pierce/Lakewood Park! This quadplex of four units (built in 1991) is impeccably maintained with upgrades, including metal roofs and all-concrete construction. Situated on a 37,897-sq-ft lot in St. Lucie County, it offers an easy commute to major highways and quick access to shopping and dining. Each unit is newly renovated with private driveways, separate entrances, open floor plans with tile, and dedicated storage. Unit 5100 features 1 bed, 1 bath; Unit 5102 offers 3 beds, 2 baths, a custom kitchen, master suite, and a screened porch; while Units 5104 and 5106 are 2-bed, 1-bath layouts. Fully occupied, the property generates an annual income of $85,000.00.
Contact AdvisorDevelopment Amenities
Development Amenities:
- Ball Field
- Basketball Court
- Bike And Jog Path
- Boating
- Clubhouse / Clubroom
- Community Room
- Extra Storage
- Fitness Trail
- Game Room
- Horse Trails
- Library
- Manager On Site
- Park
- Pickleball
- Picnic Area
- Playground
- Pool
- Sidewalk
- Soccer Field
- Spa Hot Tub
- Street Lights
- Tennis Court
- Workshop
Price History
| Date | Event | Price | Change Rate | Price Per |
|---|---|---|---|---|
| 06/30/2025 | Sold | $750,000.00 | 2.0% | $19.79 ft2/$213.02 m2 |
| 05/22/2025 | Price Reduced | $765,000.00 | 3.2% | $20.19 ft2/$217.28 m2 |
| 02/27/2025 | Listed | $790,000.00 | $20.85 ft2/$224.38 m2 |
Features
Property Details for 5100 Sanibel, Fort Pierce, FL 34951
- Bedrooms
- Bedrooms: No info
- Bedroom Description: No info
- Bathrooms
- Full Bathrooms: 0
- Half Bathrooms: No info
- Master Bathroom Description: No info
- Exterior and Lot Features
- Exterior Features: None, Shutters
- View: No info
- Interior, Heating and Cooling
- Interior Features: No info
- Appliances: No info
- Heating Description: Central
- Cooling Description: No info
- Building and Construction
- Floor Description: Tile
- Windows/Treatment: No info
- Construction Type: Cbs
- Year Built: 1991
- Waterfront and Water Access
- Waterfront Property: Yes
- Waterfront Frontage: No info
- Waterfront Description: None
- Water Access: No info
- Water Description: No info
- School Information
- Elementary School: No info
- Middle School: No info
- High School: No info
- Other Property Info
- Community Name: Lakewood Park
- Subdivision Name: LAKEWOOD PARK UNIT 12A
- Property Type: Multifamily
- Property Subtype: Quad Plex
- Type of Association: Homeowners
- Garage Spaces: No info
- Listing Date: 02/27/2025
- Closing Date: 06/30/2025
- Restrictions: None
- Directions: Take Exit 138 for Indrio Road (County Road 614) Head east on Indrio Road right onto Fort Pierce Boulevard left onto Sanibel Avenue 5100 - 5106 will be on your right
- Pets Allowed: No
- Area: 7040
- Brokered By: Paradise Realty Fla
- Taxes, Fees & More
- Maintenance/HOA Fees: No info
- Taxes (PLEASE NOTE THAT: Property taxes on resale can vary and prorated at approximately 2.0% of the purchase price and/or assessed market value. Tax rates differ between municipalities and may vary depending on location and usage): $9,252.00 (2023)


This property is courtesy of the Paradise Realty Fla. This listing has been viewed